Status
City Yangon
Township Hlaing
Area6664 sqft
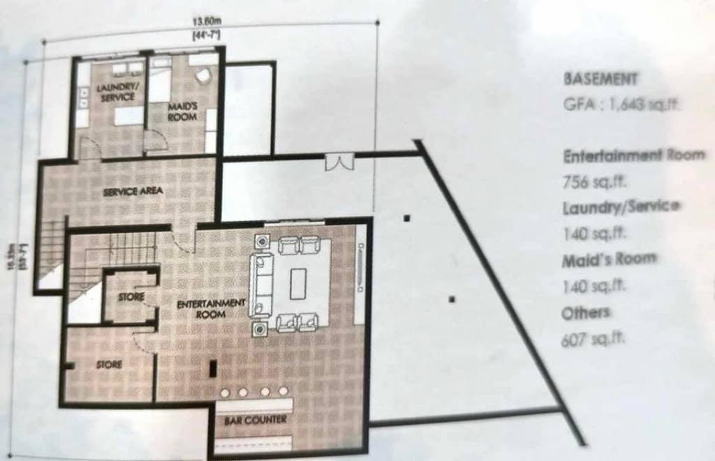
Feature 📍 ပါရမီလမ်းမ နှင့် မင်းဓမ္မလမ်းထောင့်၊လှိုင်မြို့နယ်Parami Valley အိမ်ရာဝန်းအတွင်းလုံးချင်း ရောင်းမည်။ ▪️ သိန်း 50000 (ညှိနိုင်း) 🔺 မြေအကျယ် (6664.Sqft) * အိမ်က မြေပြင် 4.RC (Basement အပါ 5.RC) * Total Building Gross Floor Area (12370.Sqft) * Total Building Construction Area (15741.Sqft) * Basement Area (1643.Sqft) - Entertainment Room (756.Sqft) - Laundray/Service (140.Sqft) - Maidroom (140.Sqft) - Others (607.Sqft) * Ground Floor Area (3235.Sqft) - Living Room (392.Sqft) - Dining Room (273.Sqft) - Dry Kitchen (205.Sqft) - Wet Kitchen (121.Sqft) - Deck (693.Sqft) - Others (1551.Sqft) * First Floor Area (2609.Sqft) - Family Room (351.Sqft) - Bedroom No.1 (394.Sqft) - Bathroom No.1 (84.Sqft) - Bedroom No.2 (339.Sqft) - Bathroom No.2 (94.Sqft) - Bedroom No.3 (420.Sqft) - Bathroom No.3 (95.Sqft) - Verandahs (341.Sqft) - Others (492.Sqft) * Second Floor Area (2676.Sqft) - Master Living Room (347.Sqft) - Master Bedroom (313.Sqft) - Master W.I.C (130.Sqft) - Master Bathroom (151.Sqft) - Bedroom No.4 (383.Sqft) - Bathroom No.4 (91.Sqft) - Terrraces (548.Sqft) - Verandahs (298.Sqft) - Othets (415.Sqft) * Third Floor Area (2207.Sqft) - Shrine Room (806.Sqft) - Fitness Room (328.Sqft) - Bathroom No.5 (88.Sqft) - Terraces (300.Sqft) - Verandahs (216.Sqft) - Others (469.Sqft) ✅For viewing the house: 0943143555 (အိမ်ကြည့်ရန်ဆက်သွယ်ရန်ဖုန်း) #ပိုင်ရှင်နှင့်တိုက်ရိုက်စျေးညှိနှိုင်းနိုင်ပါသည် လူကြီးမင်းတို့အိမ်ခြံမြေ၊လုံးချင်း၊ကွန်ဒိုအခန်းများ၊စက်မှုဇုံမြေတို့အား (ရောင်း၊ဝယ်၊ငှား)လိုပါက Anywhere Property သို့ယုံကြည်စိတ်ချစွာဆက်သွယ်အပ်နှံနိုင်ပါသည်။ Page မှာမတင်ထားတဲ့အခြားသော data များစွာရှိတဲ့အတွက်လူကြီးမင်းတို့သုံးချင်တဲ့budgetအတွင်းဝင်အောင်စိတ်တိုင်းကျသည်အထိရှာပေးပါသည်) www.anywhereproperty.com.mm Email: anywheremyanmarproperty@gmail.com #goldenvalley#thanlwin#inyamyaing#realestate#property#လုံးချင်း#လုံးချင်းအိမ် #houseforsale#thuwanna#everyone 📲 0943143555 📲 095035530
Property Type Landed house
Contract Type Sale
For sale 50000lakhs
Enquiry

Enquire Form